Wo suchen Sie?
** Gewerbefläche in Gohlis-Mitte zu vermieten (keine Gastronomie) **
Objekt ID: A2190
Leipzig - Gohlis-Mitte
Franz-Mehring-Straße 3
Gewerbe
1 Zimmer
Fläche ca. 124,80 m²
Fläche ca. 124,80 m²
Mietobjekt
1'200 €
Kaltmiete:
1'640 €
Warmmiete
Provisionsfrei!
Provision
Energiepass Art:
Verbrauch
gültig bis:
25.04.2028
Verbrauchkennwert:
71,60 kWh/(m²a)
mit Warmwasser
✓
ZUSATZINFORMATIONEN
Kaltmiete:
1'200,00 €
Warmmiete:
1'640,00 €
Nebenkosten:
440,00 €
Käuferprovision:
Kaution:
3'600,00 €
Wohnfläche ca.:
124,80 m²
Gesamtfläche:
124,80 m²
Zimmer:
1,0
Ladenfläche:
124,80 m²
Stellplätze:
1
Externe Nummer
A2190
Stand:
08.07.2025
Ausstattung
Fliesenboden
✓
Zentralheizung
✓
Gasbefeuerung
✓
Barrierefreies Objekt
✓
verfügbar ab
FREI AB JANUAR 2026
Gruppennummer
4.1.7.
Energieeffizienzklasse
B
Baujahr:
2001
Objektbeschreibung
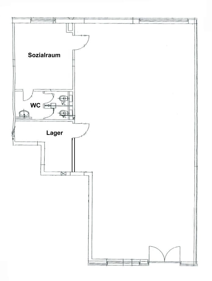
In Leipzigs bevorzugter Lage, dem Stadtteil Gohlis, finden Sie die Franz-Mehring-Straße. Die Lage ist gekennzeichnet durch Wohnbebauung mit entsprechender Bevölkerungsdichte, Gewerbeansiedlung (Einzelhandel, Dienstleistung, Gesundheit etc.), optimale Verkehrsanbindung (Bus, Straßenbahn, S-Bahn) sowie die Nähe zu Erholungsmöglichkeiten. In dem Objekt Franz-Mehring-Straße 3 haben Sie die Möglichkeit eine ebenerdige Gewerbefläche anzumieten, welche praktisch geschnitten ist und damit eine optimale Flächennutzung gewährleistet. Die gesamte Einheit ist mit einem pflegeleichten Fliesenboden ausgestattet. Ein separater Aufenthaltsraum, ein Abstell- / Lagerraum sowie ein Sanitärbereich mit zwei separaten WCs ergänzen das Raumangebot. Bei Bedarf kann ein Tiefgaragenstellplatz zusätzlich angemietet werden (100,- EUR / Monat). VERMIETUNG AB JANUAR 2026 MÖGLICH
sonstige Angaben
Die Kaution beträgt 3 Monatskaltmieten.
Objektanschrift: Franz-Mehring-Straße 3
Interesse geweckt? Objekt ID: A2190
Wir freuen uns über Ihre Anfrage:
BSDImmo - Die professionelle Joomla OpenImmo Immobilien Software

