ACHTUNG! Eingeschränkte telefonische Erreichbarkeit.
Aufgrund umfangreicher Baumaßnahmen in unseren Büroräumen sind wir ab dem 19.01.2026 bis voraussichtlich 24.02.2026 eingeschränkt erreichbar. Wir bitten Sie, uns in dringenden Fällen per E-Mail zu kontaktieren und hoffen auf Ihr Verständnis!
Wo suchen Sie?
** Südvorstadt - Gemütliche 1-Zimmer-Whg. im Hofgebäude mit Balkon und Tageslichtbad **
Objekt ID: A8558
Leipzig - Südvorstadt
Alfred-Kästner-Straße 3
Wohnung
1 Zimmer
Fläche ca. 44,41 m²
Mietobjekt
425 €
Kaltmiete:
590 €
Warmmiete
Provisionsfrei!
Provision
Energiepass Art:
Verbrauch
gültig bis:
07.06.2028
Verbrauchkennwert:
132,70 kWh/(m²a)
mit Warmwasser
✓
Energieeffizienzklasse:
E
ZUSATZINFORMATIONEN
Kaltmiete:
425,00 €
Warmmiete:
590,00 €
Nebenkosten:
165,00 €
Käuferprovision:
Kaution:
1'275,00 €
Wohnfläche ca.:
44,41 m²
Zimmer:
1,0
Externe Nummer
A8558
Stand:
13.02.2026
Ausstattung
Dusche
✓
offene Küche
✓
Zentralheizung
✓
Gasbefeuerung
✓
verfügbar ab
VERFÜGBAR AB APRIL 2026
Gruppennummer
1.1.1.
Zustand:
Vollsaniert
Objektbeschreibung
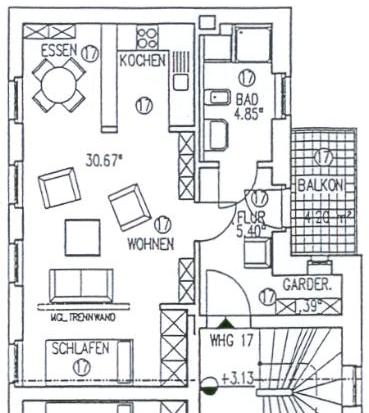
Südlich des Stadtzentrums finden Sie die Alfred-Kästner-Straße 21. Im unmittelbaren Umfeld finden Sie Einkaufsmöglichkeiten sowie Haltestellen des öffentlichen Nahverkehrs. Das Haus Alfred-Kästner-Straße 3 ist ein saniertes Mehrfamilienhaus mit Gartengebäude in unmittelbarer Nähe zum Scheibenholz und dem Clara-Zetkin-Park. Im Gartengebäude können Sie eine 1-Zimmer-Wohnung im 1. Obergeschoss mieten, welche u.a. folgende Ausstattungskriterien aufweist: Balkon, Laminatfußboden, offener Küchenbereich, gefliestes Tageslichtbad mit Dusche und Waschmaschinenanschluss. Eine Abstellkammer im Treppenhaus sowie ein Kellerabteil gehören zur Wohnung. WOHNUNG VERFÜGBAR AB APRIL 2026
sonstige Angaben
Die Kaution beträgt 3 Monatskaltmieten.
Objektanschrift: Alfred-Kästner-Straße 3 (Gartengebäude)
Interesse geweckt? Objekt ID: A8558
Wir freuen uns über Ihre Anfrage:
BSDImmo - Die professionelle Joomla OpenImmo Immobilien Software

